KOŠICE. Pred takmer tromi rokmi sa postavili lekári a vedenie Detskej fakultnej nemocnice Košice pred médiá, aby povedali, aká je tam zlá situácia.
Nedostatočná kapacita a nevyhovujúce priestory spôsobovali aj extrémne situácie, keď matky sprevádzajúce svoje deti museli spať na skladacích ruských posteliach, batožinu mali stále zbalenú. Lekári vraveli o sparťanských podmienkach pre rodičov.
Málo izieb a postelí na oddelení detskej onkológie si nutne pýtali výraznú logistiku zo strany personálu. Nič výnimočné nebolo ani to, že sa detskí onkologickí pacienti museli počas hospitalizácie presúvať z lôžka na lôžko.
Netesniace okná, nefungujúca klimatizácia, zatekanie do izieb. Aj s tým sa musia vysporiadať v jedinej koncovej špecializovanej nemocnici pre deti na východnom Slovensku.

Príkladom toho, ako nutne potrebovala rozsiahle opravy, bol aj medializovaný prípad neonatologického oddelenia. Informácia o tom, že k inkubátorom sa vedia dostať holuby či hmyz, prípadne netopiere, obletela Slovensko. Matky tam mali k dispozícii jednu kúpeľňu. Dostať pracovisko do 21. storočia pomohla verejnosť, ktorá sa vyzbierala na opravy.
Detská nemocnica roky volá po rozšírení svojich priestorov. V nasledujúcich mesiacoch sa to stane realitou. Aktualizačným momentom je súčasná žiadosť o stavebné povolenie, ktorú zdravotnícke zariadenie podalo 1. augusta na košický stavebný úrad.
S prácami by sa mohlo začať v prvom kvartáli budúceho roka a dokončené by mohli byť koncom roka 2028. Náklady sú odhadované na približne 39 miliónov eur s DPH. Financovanie je plánované zo štátneho rozpočtu.
Zo svojho do cudzieho
Aktuálna situácia v detskej nemocnici vychádza z dávnejších udalostí. Súvisia najmä s akciou guľový blesk. Išlo o pomerne rýchle a rozsiahle zmeny v košickom štátnom zdravotníctve, keď vznikali nové špecializované ústavy odčlenením od nemocníc a zároveň prebiehalo veľké sťahovanie.
Reformný proces rozbehol v roku 2004 vtedajší minister zdravotníctva Rudolf Zajac (ANO). Chcel tým dosiahnuť efektívnejšie fungovanie zdravotníctva.
Jednu z najväčších zmien podstúpila košická detská fakultná nemocnica. V roku 2004 sa musela sťahovať z dlhoročnej pôvodnej adresy na Moyzesovej ulici. Išlo o historické priestory. Následne sa mal uvoľnený objekt predať a peniaze použiť na stavbu nového ústavu srdcových a cievnych chorôb.
Detských pacientov presťahovali do prenajatých priestorov vtedajšej fakultnej nemocnice na Triede SNP. Neboli vyhovujúce, detské pracoviská sídlili na viacerých poschodiach a vo viacerých budovách. Po desiatich rokoch sa nemocnica definitívne usadila v uvoľnených hrebeňovkách na rovnakej adrese. Tie boli v roku 2013 sčasti rekonštruované z eurofondov.
Aktuálne sú nemocničné pracoviská umiestnené v štyroch vzájomne poprepájaných objektoch. Stavali ich v 70. rokoch 20. storočia.

Tisíce metrov novej plochy
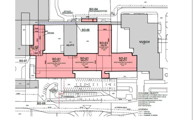
Čo by mala priniesť aktuálna rekonštrukcia? V pláne je vybudovanie dvoch nových nadzemných podlaží nad existujúcimi ambulantnými priestormi a prístavba nového objektu v tvare kvádra.
Nemocnica by tak mala získať vyše osemtisíc metrov štvorcových novej plochy. Modernizáciou sa vytvoria podmienky pre detské lôžkové oddelenia s možnosťou hospitalizácie aj matky s dieťaťom.
Nové priestory budú slúžiť pre hospitalizáciu aj ambulantnú starostlivosť. Sťahovať by sa tam mali oddelenia detskej onkológie a hematológie, oddelenia neonatologickej intenzívnej medicíny, fyziatricko-rehabilitačného oddelenia, oddelenia detskej neurológie ako aj časti kliniky detí a dorast.
Po rekonštrukcii existujúceho prvého nadzemného podlažia má byť zas vytvorené moderné oddelenie rádiológie a zobrazovacích metód.
Detská nemocnica začiatkom marca uzavrela zmluvu so zhotoviteľom – skupinou dodávateľov AXA Projekt - TSPC - TSPC Slovakia - na vypracovanie projektovej dokumentácie pre stavebné konanie a realizáciu nadstavby a rekonštrukcie nemocnice. Ide o zákazku v sume viac ako 935 700 eur s DPH.
Silný apel
Zdravotnícke zariadenie pôvodne plánovalo využiť na dôležité stavebné práce plán obnovy. Peniaze však napokon išli do iných zdravotníckych zariadení, košickým nemocniciam, napriek veľkým investičným dlhom, sa ušlo z veľkej výzvy s balíkom vyše miliardy eur len pár miliónov. Detská nedostala vôbec nič.
Situáciu v nej potom popísal jej riaditeľ Andrej Koman ako zložitú, ktorú nemožno riešiť vlastnými silami. Počas tlačovej konferencie v novembri 2022 vravel, že nemocnica je pred kolapsom.
Novinári sa vtedy mali možnosť pozhovárať aj s mamičkami, ktoré sprevádzali svoje hospitalizované deti. Nie všetkým pritom bolo dopriate pre nedostatok kapacít s deťmi prespávať. Tie, ktorým sa to podarilo, spali aj na skladacích ruských posteliach. Okrem toho mali neustále zbalené kufre, pretože nikdy nevedeli, či sa nebudú musieť sťahovať do inej izby.

„Nie je kde si navariť, ohriať jedlo. Mikrovlnná rúra nie je vhodná pre detičky, ktoré sa liečia na onkologické ochorenie. Izby sú maličké, veci mám v kufroch. Ani si ich nevykladám. Ak niečo potrebujem, tak si to z kufra vytiahnem," opísala vtedy situáciu na oddelení detskej onkológie jedna z mamiek.
„Apelujeme na vládu aj poslancov Národnej rady, aby sa zasadili o projekt nadstavby a rekonštrukcie Detskej fakultnej nemocnice Košice, ktorý v dlhodobom horizonte môže napraviť chyby, ktoré vznikli v minulosti,“ vyzýval vtedy Koman.
Peniaze zo štátneho rozpočtu po neúspechu v pláne obnovy napokon schválila vláda v júli 2024. Dôvodila aj tým, že do časti objektov, v ktorých sa liečia deti, sa neinvestovalo takmer 40 rokov a sú v podstate v pôvodnom stave.

Vládna limuzína vs. starostlivosť o deti
Nevyhovujúce priestory detskej nemocnice a ich dlhodobé neriešenie mali aj politický kontext. Poslanci KDH tvrdili, že vládu donútili odsúhlasiť dostavbu po opakovanom tlaku ich poslancov a širokej verejnosti.
KDH niekoľko mesiacov upozorňovalo na neriešené problémy najmä na oddelení neonatologickej intenzívnej medicíny. To stále sídli v prenajatých priestoroch, vo výškovej budove univerzitnej nemocnice.
Ako to na pracovisku vyzeralo v praxi? Mali tam 43-ročnú klimatizáciu, ktorá nestíhala, zatekanie pri daždi, prefukovanie v zime i bežné situácie, keď sa k inkubátorom dostali holuby, netopiere alebo hmyz.
„Ľahko sa to hovorí z klimatizovaných priestorov ministerstva alebo z vládnej limuzíny. Ale vydržať na oddelení 12 alebo 24 hodín, kde nie je dostatočne funkčná klimatizácia na to množstvo prístrojov, inkubátorov a ventilátorov, monitorov a infúznych púmp, ktoré sálajú teplo, mať polovicu zmeny strčené ruky v teplom a vlhkom inkubátore, ako majú naše sestry, je na nevydržanie. A mať v takomto teple roztoky a lieky je ohrozenie bezpečnosti pacienta a o neho v prvom rade ide,“ charakterizovala jeden z problémov pracoviska dlhoročná primárka oddelenia neonatologickej medicíny Vanda Chovanová.

Práce, ktoré pomohli
Pracovisku napriek urgentnému volaniu o pomoc napokon nepomohol štát, ale verejnosť, ktorá sa na rekonštrukciu jeho priestorov poskladala.
Cez platformu Donio.sk prispelo 12 500 darcov sumou prevyšujúcou 330 000 eur. Od januára do mája 2025 tam prebehli rozsiahle stavebné práce. Ich výsledkom sú dnes moderné zdravotnícke priestory hodné 21. storočia.
Vymenili sa všetky okná, prebehla modernizácia elektroinštalácie a osvetlenia, opravili sa vodovodné rozvody, kúpeľne, sanita a ďalšie technické časti zázemia. Oddelenie dostalo nové podlahy, hygienické nátery, zvukovo-izolačné podhľady a moderný nábytok.
Vznikol plne vybavený priestor na prípravu stravy pre novorodencov, pribudli spotrebiče, postele, posteľná bielizeň, ako aj funkčné a estetické vybavenie pre mamy, ktoré ostávajú pri svojich deťoch aj celé týždne či mesiace.
Veľká rekonštrukcia ráta aj s priestormi pre oddelenie neonatologickej medicíny. Chovanová vlani v rozhovore pre Korzár vravela, že aj keby v budúcnosti odišli do svojho, zrekonštruované priestory budú slúžiť iným pacientom v Univerzitnej nemocnici L. Pasteura.
Najdôležitejšie správy z východu Slovenska čítajte na Korzar.sme.sk. Všetky správy z Košíc nájdete na košickom Korzári